Residential Projects

ADU | Residential | Commercial Building Designer's image
ADU | Residential | Commercial Building Designer's image
ADU | Residential | Commercial Building Designer's image

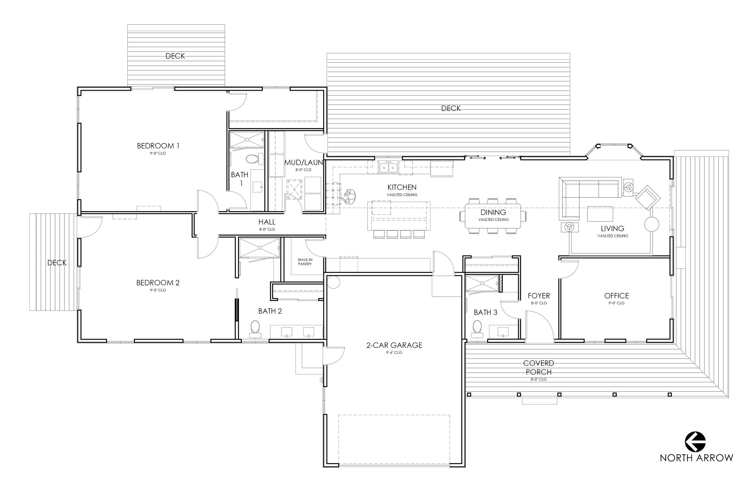
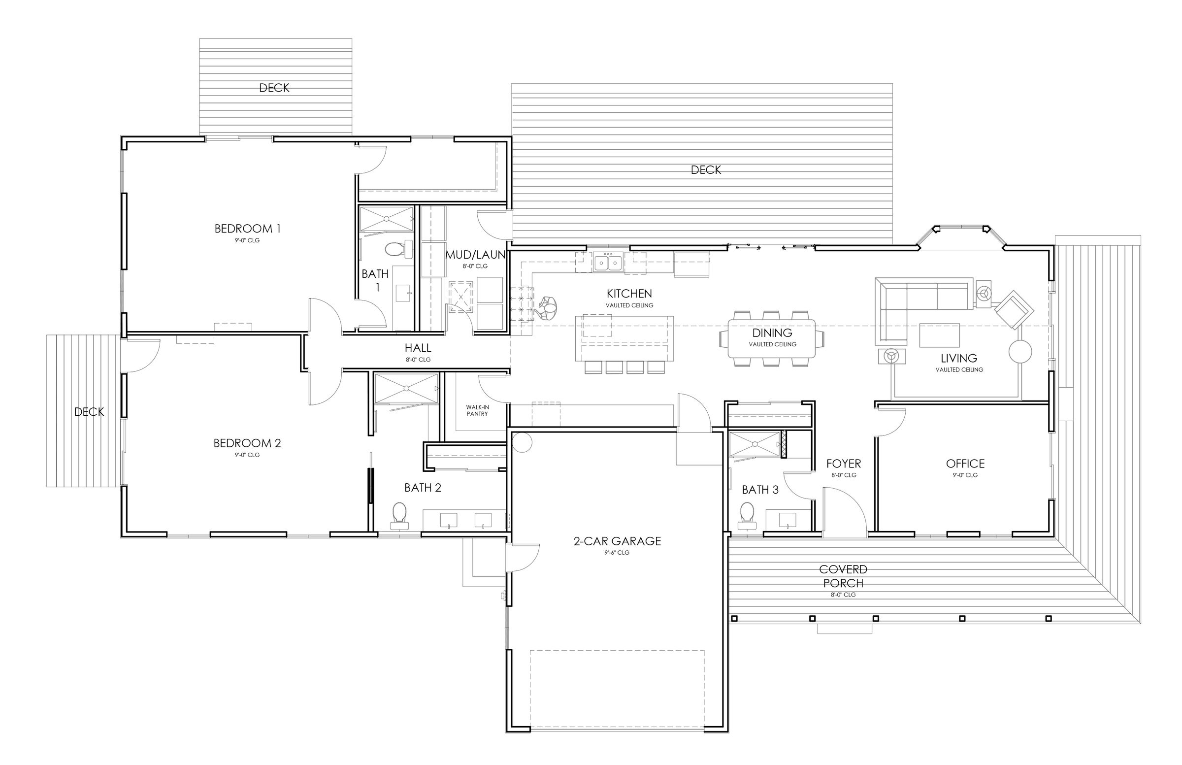
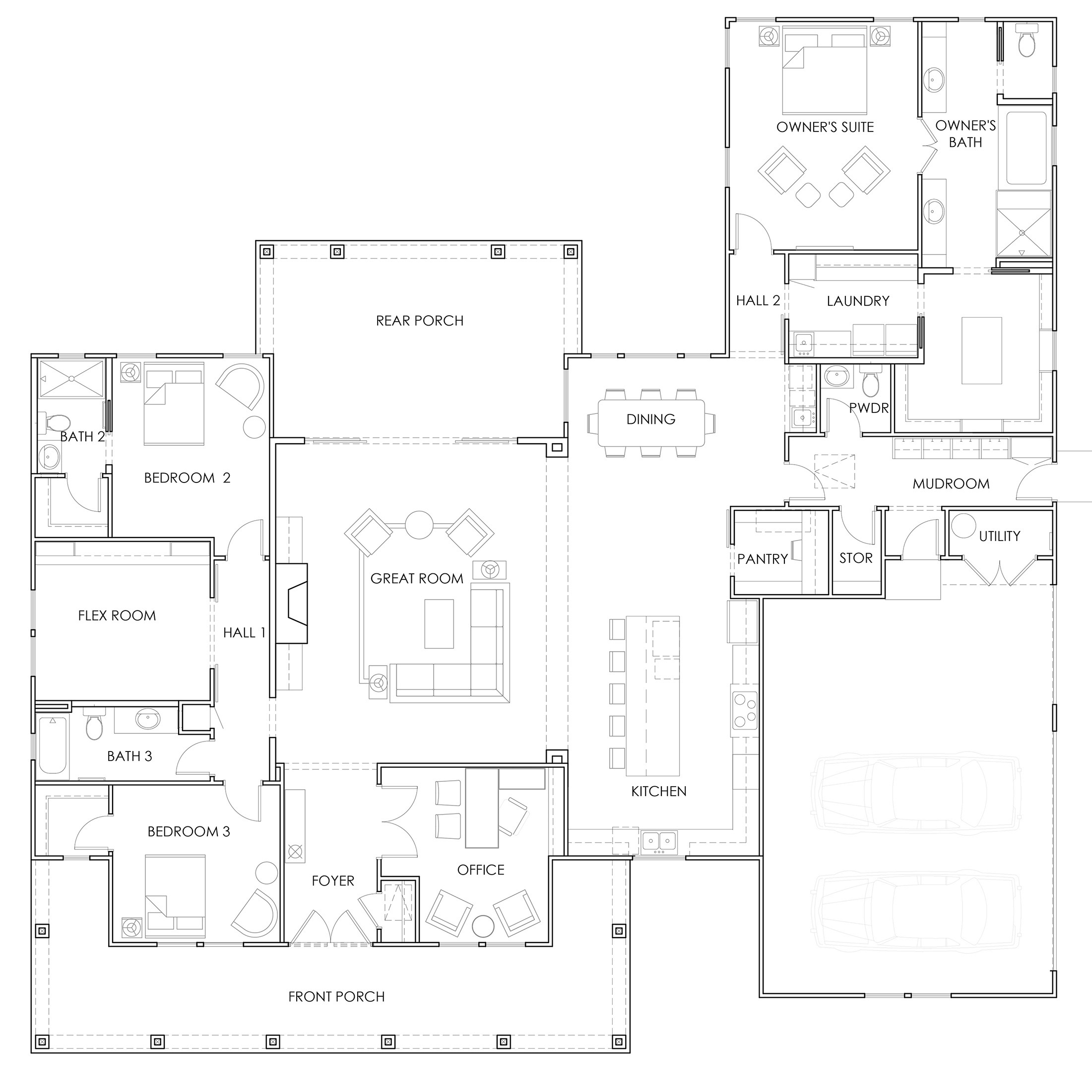
Halley Residence | Placerville, CA

Description

This 4,648-square-foot modern farmhouse centers around a spacious great room that opens to a rear porch and landscaped outdoor living area. A large kitchen supports both everyday living and entertaining, while flexible spaces accommodate a home office, media room, or children’s activity area. The owner’s suite is thoughtfully positioned to provide privacy and a quiet retreat.

ADU | Residential | Commercial Building Designer's image
ADU | Residential | Commercial Building Designer's image
ADU | Residential | Commercial Building Designer's image

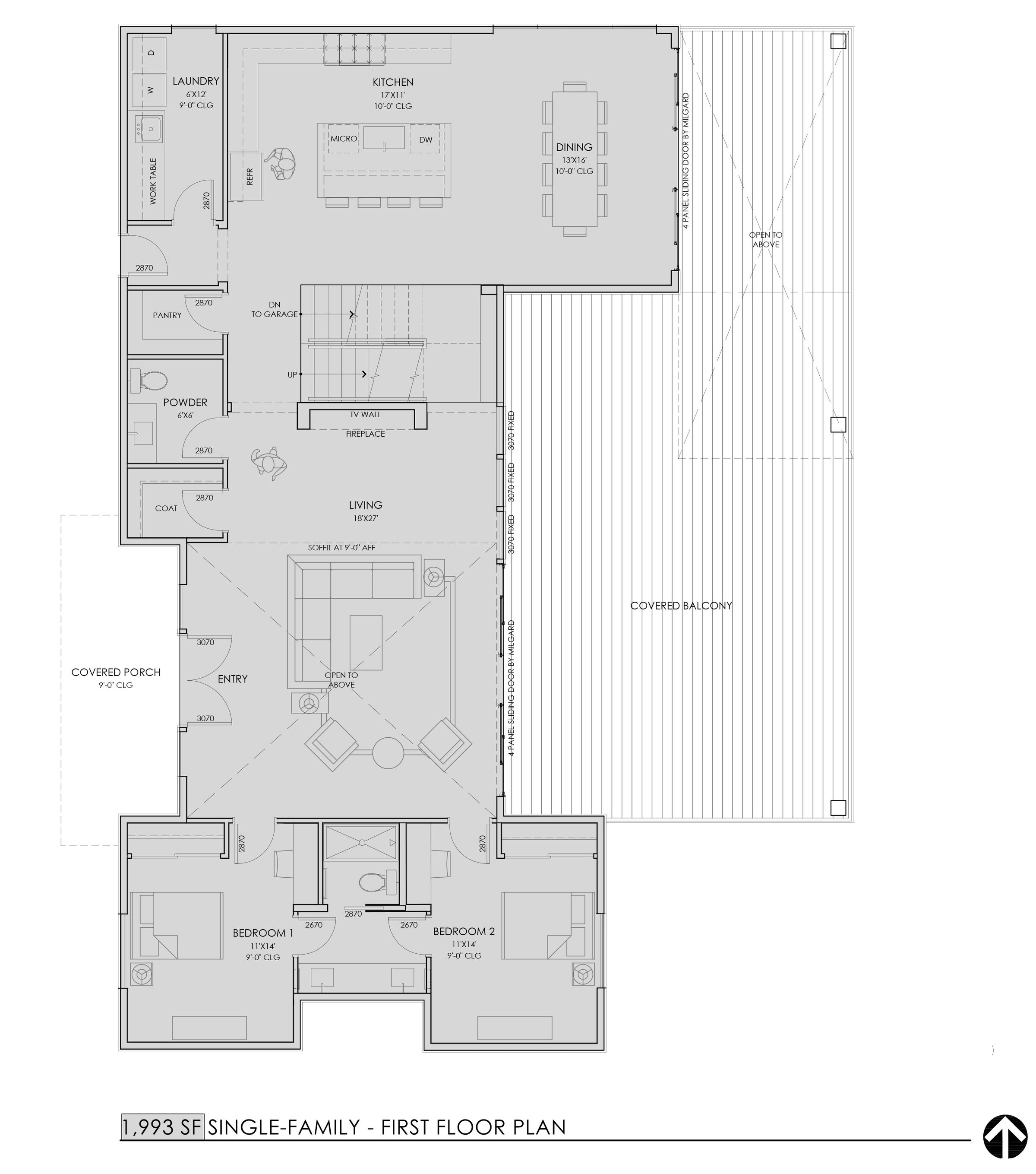
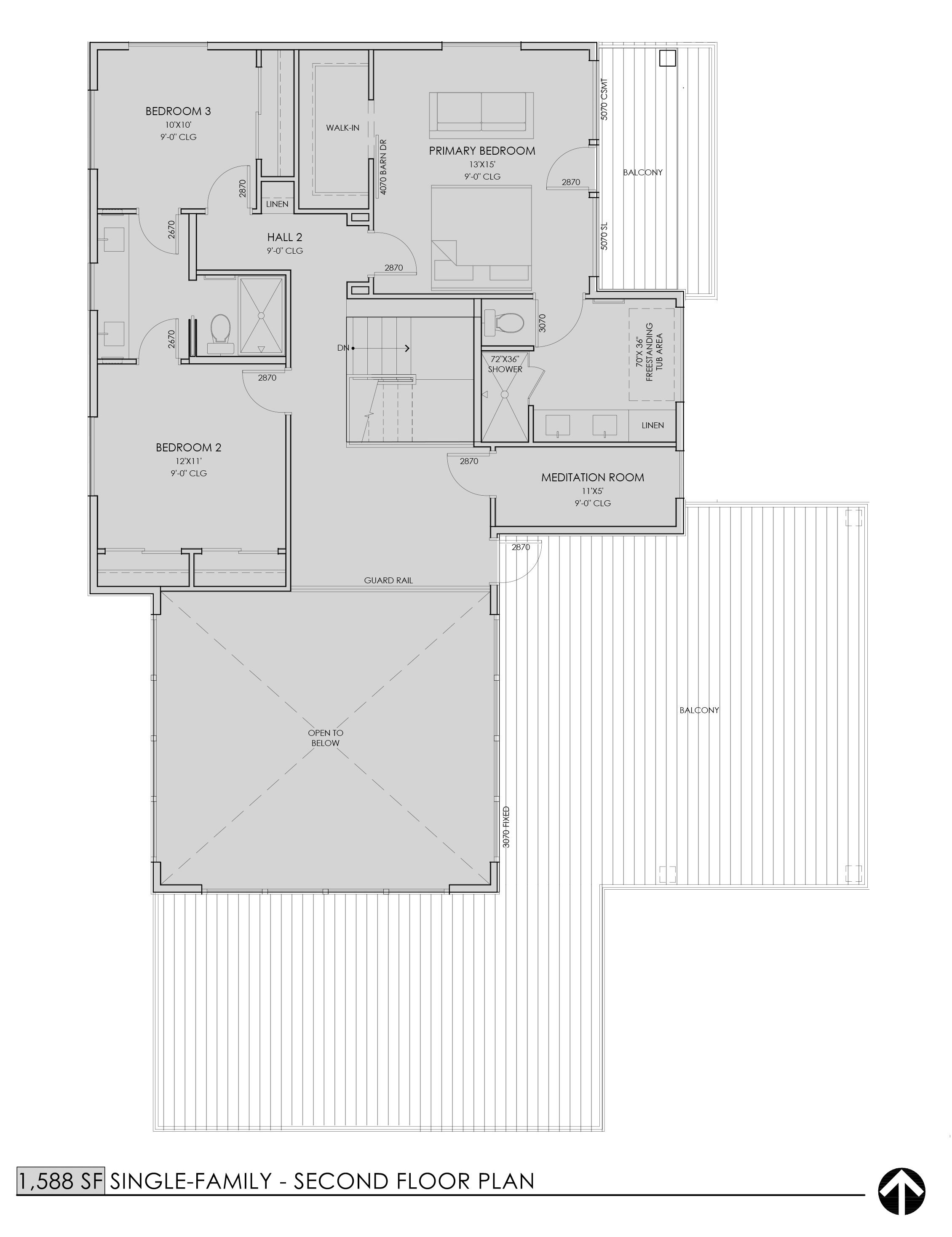
Koehler Residence | New Castle, CA

Description

A ground-up, 2,945 sq. ft. custom single-family home thoughtfully designed with 2 bedrooms, 3 bathrooms, and an office. The open-concept layout creates a seamless flow between living spaces, maximizing natural light, functionality, and comfort for modern family living.

ADU | Residential | Commercial Building Designer's image
ADU | Residential | Commercial Building Designer's image
ADU | Residential | Commercial Building Designer's image

Podkhodov Residence | Los Gatos, CA | Under City Design Review

Description

This proposed 3,581 sq. ft. two-story single-family residence is thoughtfully designed for connection and gathering, with five bedrooms and four-and-a-half bathrooms. An open-concept layout centers around a grand living room that flows effortlessly to a generous outdoor balcony, framing sweeping views of the east hillside. The home’s layout is crafted to bring people together—perfect for large family gatherings, celebrations, and seasonal entertaining.

ADU | Residential | Commercial Building Designer's image

Kitchen Remodel | Davis, CA

Description

Interior partitions were removed to open the relationship between the dining and kitchen areas, creating a more fluid and connected living space. A newly introduced vaulted ceiling elevates the volume of the room, establishing a light-filled setting designed for gathering and entertaining. Contemporary cabinetry and a streamlined peninsula provide additional seating while reinforcing the kitchen as the social center of the home.

Commercial Projects

ADU | Residential | Commercial Building Designer's image
ADU | Residential | Commercial Building Designer's image

The Red Chickz | Woodland, CA

Description

1,200 sq. ft. restaurant tenant improvement for the franchise's inaugural Northern California location. The kitchen and dining layout supports efficient use of space while aligning with the tenant's brand and workflow.

ADU | Residential | Commercial Building Designer's image
ADU | Residential | Commercial Building Designer's image
ADU | Residential | Commercial Building Designer's image
ADU | Residential | Commercial Building Designer's image

Acai Garden | Sacramento, CA

Description

An 879 sq. ft. juice and smoothie bar tenant improvement—the brand’s first-of-its-kind concept in Northern California. Working within a tight footprint, the kitchen equipment was thoughtfully planned for efficient operation.

ADU | Residential | Commercial Building Designer's image
ADU | Residential | Commercial Building Designer's image

Plaza Center | Ceres, CA | Under City Design Review

Description

A proposed 5,000 sq. ft. ground-up commercial retail building designed to accommodate five tenant spaces, anchored by a major franchise coffee shop. The building is planned for flexible layouts while meeting all local planning and building code requirements.

ADU | Residential | Commercial Building Designer's image
ADU | Residential | Commercial Building Designer's image
ADU | Residential | Commercial Building Designer's image

Community Church Project | Sacramento, CA | Community Review Completed

Description

A proposed community church featuring a preliminary program of approximately 25,600 sq. ft., including a sanctuary, classrooms, and community gathering spaces. The project has completed a community hearing to gather input prior to formal city design review.

ADU | Residential | Commercial Building Designer's image
ADU | Residential | Commercial Building Designer's image
ADU | Residential | Commercial Building Designer's image

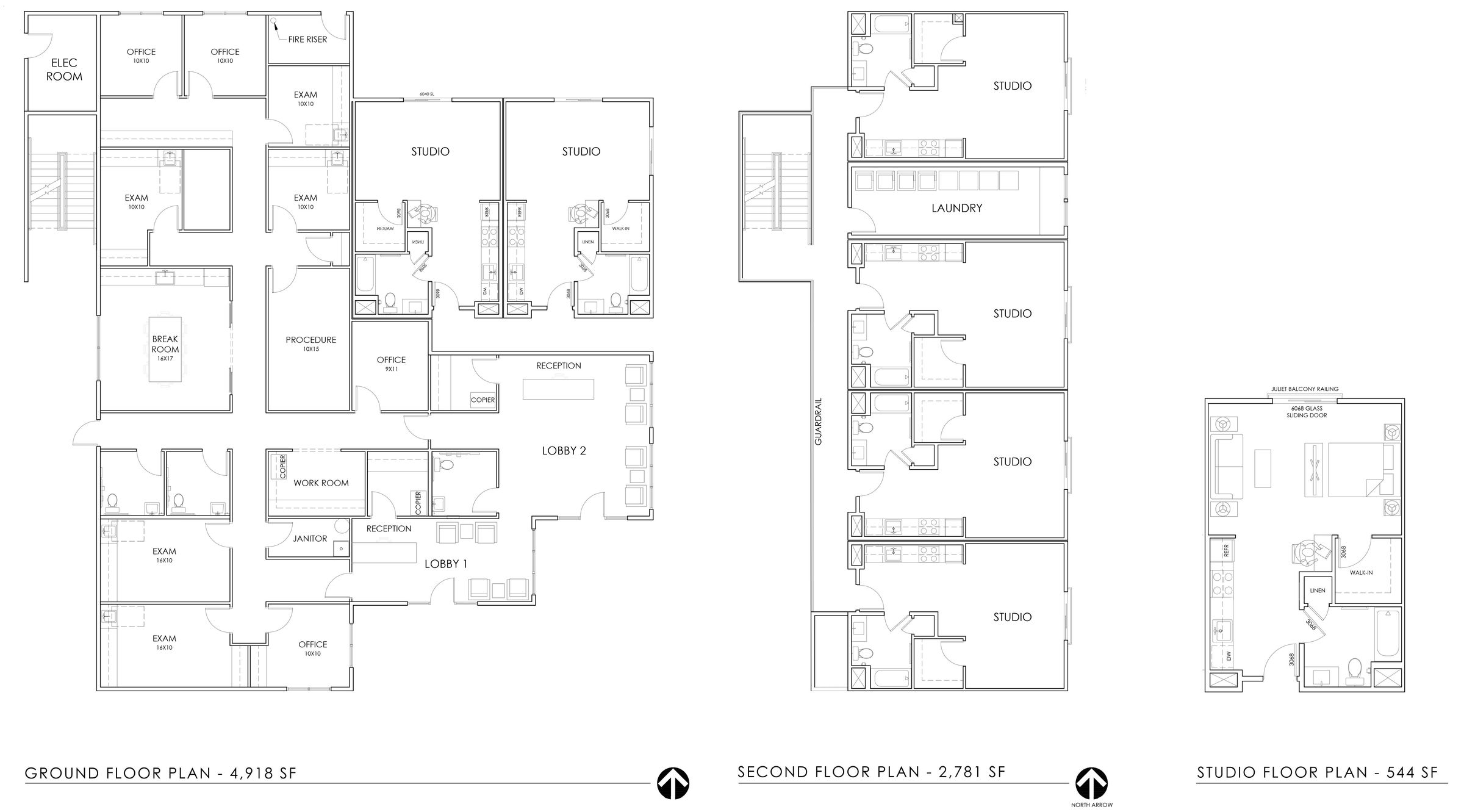
4th Street Studios | Davis, CA | Under City Design Review

Description

The proposed project includes a new 7,699-square-foot mixed-use building with medical office space on the ground floor and studio residential units above, including a shared laundry facility.

The project aligns with the City’s mixed-use development goals by integrating commercial and residential uses within a single structure. The contemporary design features clean lines and quality materials with warm wood-tone accents, creating a modern appearance that remains compatible with the surrounding neighborhood.